Otevřeno  Po - Pá   7 - 17  / SO  8 - 12

Sada TOP LINE 1 2kř.

Sleva 70%

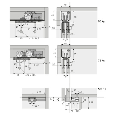
45078       Sada kování pro posuvné dveře s horním vedením (skříň se dvěma křídly

  • Sada obsahuje horní součásti pro skříň s 2 dveřmi
  • Maximální hmotnost dveří 50 kg


Sada obsahuje:

  • 4 ks tandemový vozík
  • 2 ks koncový doraz pro nosný profil
  • 1 ks, distanční díl
  • Upevňovací materiál


Upozornění:

  • Profily a dolní vedení je třeba objednat zvlášť
350,00 Kč 1 143,00 Kč